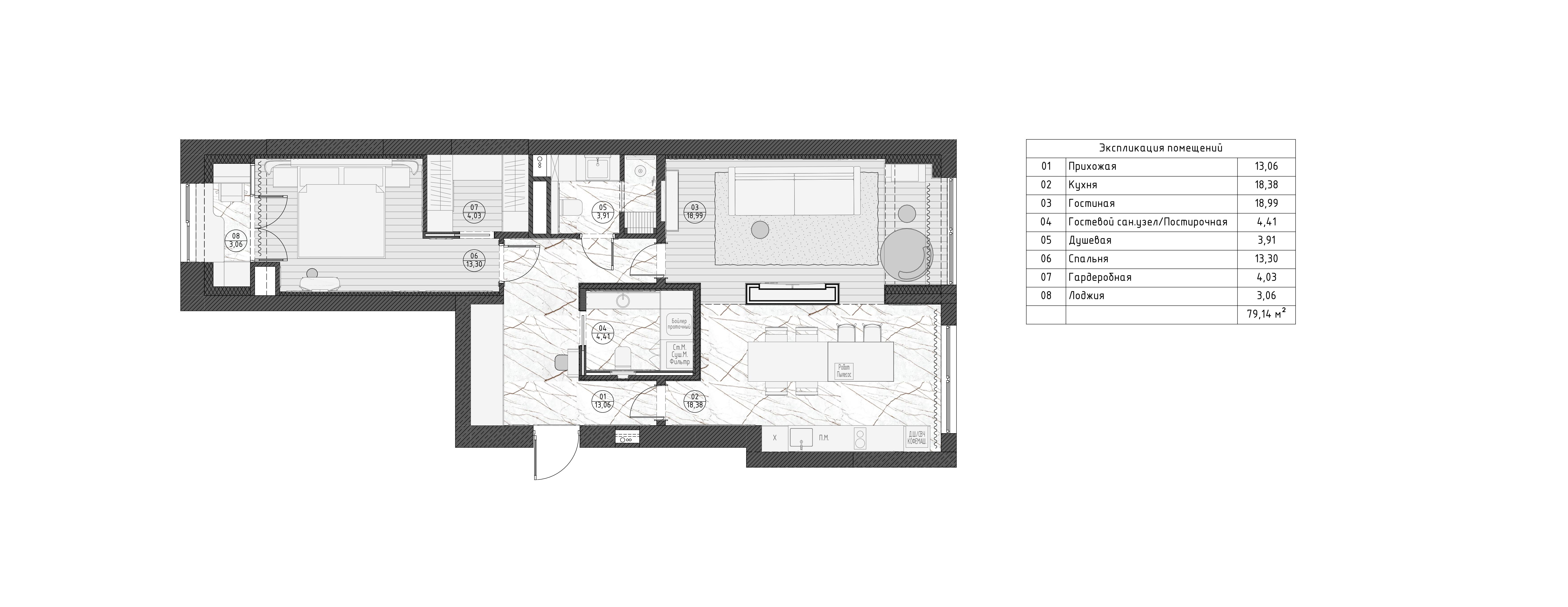
2-комнатная квартира
г. Москва
10 лет проектируем и создаем премиум-интерьеры
ЖК Искра Парк
82 м²
Полы инженерная доска FINEX
Натуральный камень
Керамогранит Iris FMG
Двери Attribut
Освещение Lasvit. Sylcomlight Dandolo. Zenith
Смесители Jorger
Розетки и Выключатели Jung
Стены. Покраска Derufa. Гипсовая лепнина
Индивидуальная роспись
Корпусная мебель индивидуального пр-ва
Дизайн-проект, ремонт, комплектация
Хотите заказать похожий проект?
Мы рассчитаем стоимость дизайн-проекта, ремонтных работ, черновых
и чистовых материалов
Проекты в таком же стиле
ЖК Artisan
Пентхаус
272 м²
г. Москва
ЖК Долгоруковская 25
Пентхаус
200 м²
г. Москва
Дом Пестово
Дом "под ключ"
2000 м²
Московская область
