Пентхаус
г. Москва
10 лет проектируем и создаем премиум-интерьеры
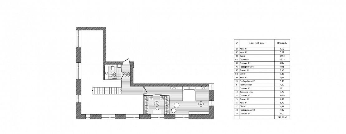
ЖК Долгоруковская 25
200 м²
Стиль Современная классика
Полы инженерная доска FINEX
Освещение Zenith
Смесители Axor
Розетки и Выключатели Fontini
Стены. Гипсовая лепнина. Авторская роспись
Декоративная покраска Derufa
Корпусная мебель индивидуального пр-ва
Дизайн-проект, ремонт, комплектация
Хотите заказать похожий проект?
Мы рассчитаем стоимость дизайн-проекта, ремонтных работ, черновых
и чистовых материалов
Проекты в таком же стиле
ЖК Artisan
Пентхаус
272 м²
г. Москва
Дом Пестово
Дом "под ключ"
2000 м²
Московская область
КП Аксиньино
Интерьер дома
338 м²
Рублёво-Успенское шоссе
