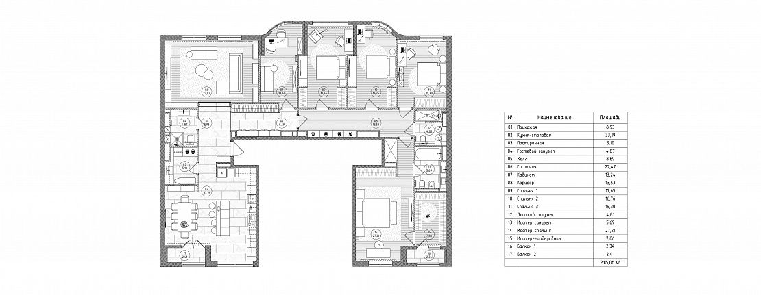
7-room apartment
Moscow
We've been designing and creating premium interiors for 10 years
Tsarskay Ploschad
215 m²
FINEX engineering board floors
Iris FMG porcelain stoneware
Atribut doors
Serib. Zenit lighting
Gessi mixers
Fontini Sockets and Switches
Walls. Painting Derufa. Stucco
Cabinet furniture of individual design
Design project, renovation, interior fittings
Would you like to place an order for a similar project?
We’ll calculate the cost of the project design, decorating work, non-finishing
and finishing materials
Projects in the same style
Petrovo Dalnee
Privete residence
483 m²
Moscow
Turandot Residences
4-room apartment
238 m²
Moscow
Na trubetskoy
4-room apartment
167 m²
Moscow
