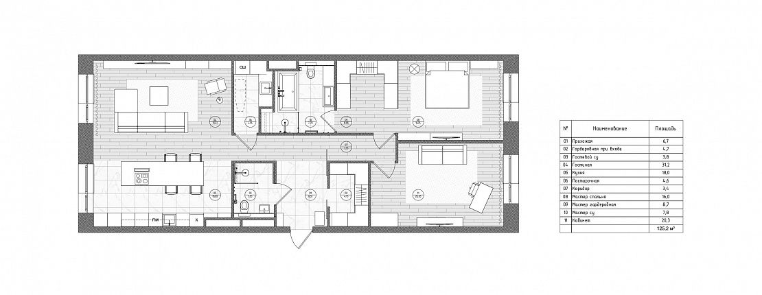
3-комнатная квартира
г. Москва
10 лет проектируем и создаем премиум-интерьеры
ЖК Воробьёв Дом
125 м²
Стиль Современный
Полы инженерная доска FINEX
Керамогранит Casaigrande Padanа
Двери Attribut
Освещение Flos. Zenith
Смесители Axsor
Розетки и Выключатели Bticino
Стены. Покраска Derufa. Стеновые панели
Корпусная мебель индивидуального пр-ва
Дизайн-проект, ремонт, комплектация
Хотите заказать похожий проект?
Мы рассчитаем стоимость дизайн-проекта, ремонтных работ, черновых
и чистовых материалов
Проекты в таком же стиле
ЖК Новатория
Пентхаус
160 м²
г. Москва
ЖК Новатория
Пентхаус
182 м²
г. Москва
ЖК RedSide
Пентхаус с терассой
211 м²
г. Москва
