Офис "под ключ"
г.Москва
10 лет проектируем и создаем премиум-интерьеры
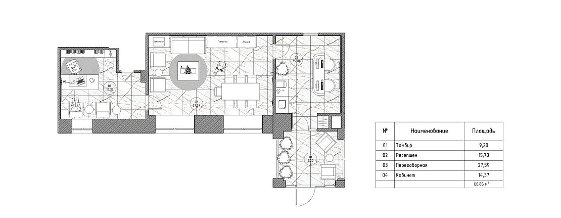
Офис на Зорге
67 м²
Керамогранит Ariostea
Освещение Baxter
Смесители Feramolli
Розетки и выключатели Jung
Стены. Стеновые панели
Корпусная мебель индивидуального пр-ва
Мягкая мебель Cattelan, Ditre Italia
Дизайн-проект, ремонт, комплектация
Хотите заказать похожий проект?
Мы рассчитаем стоимость дизайн-проекта, ремонтных работ, черновых
и чистовых материалов
Проекты в таком же стиле
ЖК Новатория
Пентхаус
160 м²
г. Москва
ЖК Новатория
Пентхаус
182 м²
г. Москва
ЖК RedSide
Пентхаус с терассой
211 м²
г. Москва
