ГК Основа
г. Москва
10 лет проектируем и создаем премиум-интерьеры
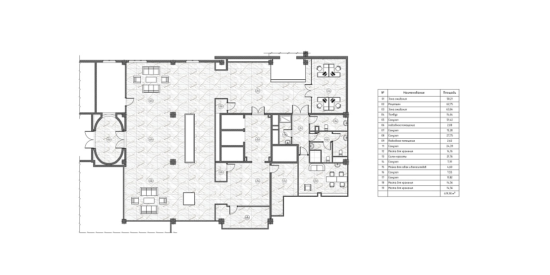
МОП ЖК Резиденции Замоскворечье вар 1
420 м²
Хотите заказать похожий проект?
Мы рассчитаем стоимость дизайн-проекта, ремонтных работ, черновых
и чистовых материалов
Проекты в таком же стиле
ЖК Новатория
Пентхаус
160 м²
г. Москва
ЖК Новатория
Пентхаус
182 м²
г. Москва
ЖК Artisan
Пентхаус
272 м²
г. Москва
